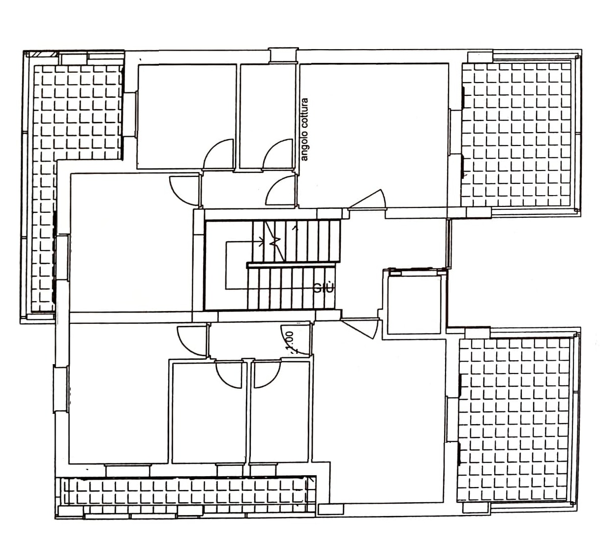
Sant’Agata – In un contesto tranquillo e ben servito da attività commerciali, servizi e mezzi pubblici, nelle immediate vicinanze dell’Ospedale Papardo e della Facoltà di Ingegneria, scuole, negozi, farmacie, proponiamo in vendita appartamenti di nuova costruzione. Proponiamo diverse unità abitative composte da: soggiorno con angolo cottura, due camere da letto, bagno, due verande e posto auto.
Gli immobili presentano ottime rifiniture e garantiscono elevati standard di comfort.
Classe energetica A.
Descrizione
Servizi
Posto auto
Ascensore
Informazioni aggiuntive
Balconi: 1
Camere: 2
Veranda: 1
Panoramico: si
Posti auto: 1
Tipo riscaldamento: autonomo
Cucina: angolo cottura
Piano: 1
Condizioni interne: ottime
Anno costruzione: 2026
Numero piani stabile: 3
Stato occupazione: libero
Classe energetica: A
